INDUSTRIAL ESTATE - NALANDA ELLAWALA STAGE I
Introduction
Industrial Estate
Nalanda Ellawala Industrial zone – stage 01
Province
Sabaragamuwa
Contact Information
Mr. P.D.S. Madushanka
Regional Director (Acting) Regional Industry Service Center
Paradise
Kuruwita
Rathnapura
Tel: 045-2262344
Email: riscsabaragamuwa@gmail.com
Regional Director (Acting) Regional Industry Service Center
Paradise
Kuruwita
Rathnapura
Tel: 045-2262344
Email: riscsabaragamuwa@gmail.com
Divisional Secretariat
Kuruwita
District
Rathnapura
Grama Niladari Division
No 155- Kuruwita
Land Extent (Acres)
36.38
Address
Nalanda Ellawala Industrial zone – stage 01 , Paradise , Kuruwita
Total Number of Plots
45
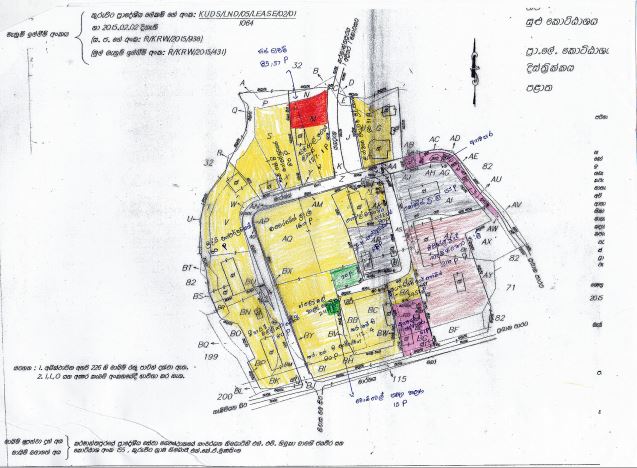
MAP And land details
MAP
Land Details
| Lot number | Quantity of the land (A: R:P) | Current Situation | Sutabale for Investment /Not Suitable |
|---|---|---|---|
| BN/BM/BO/BP | 43.96 p | Reseved Land. | |
| BT | 58.8 p | Reseved Land. | |
| BB | 42.34 p | Reseved Land. | |
| BF/BG/BL/BI | 80 p | Reseved Land. | |
| AB/ | 80 p | Reseved Land. | |
| M | 143.2 P | Reseved Land. | |
| AN | 160 p | Reseved Land. | |
| AP/AW/AX | 80 p | Reseved Land. | |
| W/Y/Z | 160 p | Reseved Land. | |
| bn/bk/bp | 80 p | Reseved Land. | |
| v | 160 p | Reseved Land. | |
| ak | 80 p | Reseved Land. | |
| T | 120 p | Reseved Land. | |
| U/AA | 80 p | Reseved Land. | |
| H | 81.68 p | Reseved Land. | |
| az | 29.57 p | Reseved Land. | |
| S(Part) | 80 p | Reseved Land. | |
| G/H | 80.91 p | Reseved Land. | |
| bv/bc/bp | 112.4 p | Reseved Land. | |
| aq(Part) | 80 p | Reseved Land. | |
| AZ | 40 p | Reseved Land. | |
| K | 233.3 p | Reseved Land. | |
| aq(Part) | 160 p | Reseved Land. | |
| m | 127.1 p | Reseved Land. | |
| AF/AG | 78.39 p | Reseved Land. | |
| AQ | 121.57 p | Reseved Land. | |
| aq(Part) | 211.01 p | Reseved Land. | |
| T Part | 35 p | Reseved Land. | |
| BA Part | 23.31 p | Reseved Land. | |
| AE | 80 p | Reseved Land. | |
| at | 316.10000000000002 | Reseved Land. | |
| AY/BE/ | 80 | Reseved Land. | |
| AM | 168 p | Reseved Land. | |
| ag/al | 155 p | Reseved Land. | |
| AJ/AI/AH | 63.2 p | Reseved Land. | |
| AR | 85 p | Reseved Land. | |
| bd/be/bg | 61 p | Reseved Land. | |
| B | 13.79 p | Reseved Land. | |
| G | 5.77 p | Reseved Land. | |
| H/J | 4.23 p | Reseved Land. | |
| BU | 44.36 p | Reseved Land. | |
| BA | 60 p | Reseved Land. | |
| BA Part of | 5p | Reseved Land. | |
| AQ(Part of ) | 15 p | Reseved Land. | |
| S | 85.57 p | Vacant Land | Sutabale for Investment |
| BC | 32.65 p | Vacant Land | Sutabale for Investment |
Company details
| Land Lot No | Name of the Industry | Sector | Address | Telephone | |
|---|---|---|---|---|---|
| BN/BM/BO/BP | Prarthana Sheet Center (Expansion 2) | Metal,Dies and Moulds, Machinery and related Industry Sector | Nalanda Ellawala Industrial Zone, Stage 01 02,Paradise,Kuruwita . | 071-8004305 | prarthana@gmail.com |
| BT | Prarthana Sheet Center | Metal,Dies and Moulds, Machinery and related Industry Sector | Nalanda Ellawala Industrial Zone, Stage 01 02,Paradise,Kuruwita . | 071-8004306 | prarthana@gmail.com |
| BB | Prarthana Sheet Center (Expansion ) | Metal,Dies and Moulds, Machinery and related Industry Sector | Nalanda Ellawala Industrial Zone, Stage 01 02,Paradise,Kuruwita . | 071-8004307 | prarthana@gmail.com |
| BF/BG/BL/BI | Mohana Industries | Wood & wood based Industries Sector | Nalanda Ellawala Industrial Zone, Stage 01 02,Paradise,Kuruwita . | 718549381 | mohana.industries.exports@gmail.com |
| AB | Sigiri Furnituries(pvt) | Metal,Dies and Moulds, Machinery and related Industry Sector | Nalanda Ellawala Industrial Zone, Stage 01 02,Paradise,Kuruwita . | 071-7398763 071-5363348 | kalutotasigiri@gmail.com |
| M | Sigiri Furnituries(pvt) | Wood & wood based Industries Sector | Nalanda Ellawala Industrial Zone, Stage 01 02,Paradise,Kuruwita . | 071-7398763 071-5363349 | kalutotasigiri@gmail.com |
| AN | Beehive Industries (Pvt) Ltd(Expansion) | Gem & Juwelarry & related Industry Sector | Nalanda Ellawala Industrial Zone, Stage 01 02,Paradise,Kuruwita . | 077-7683977 071-6124687 | beehivelapidary@yahoo.com |
| AP/AW/AX | Beehive Industries (Pvt) Ltd. | Gem & Juwelarry & related Industry Sector | Nalanda Ellawala Industrial Zone, Stage 01 02,Paradise,Kuruwita . | 071-1537039 077-7306965 | beehivelapidary@yahoo.com |
| W/Y/Z | Augustine Motors (Pvt) Ltd | Auto mobile Components & chmical industry Sector | Nalanda Ellawala Industrial Zone, Stage 01 02,Paradise,Kuruwita . | 071-1537039 077-7306965 | kuruwitaaugusting@gmail.com |
| bn/bk/bp | Beehive Mallika Bakery | Processed Food and related Industries Sector | Nalanda Ellawala Industrial Zone, Stage 01 02,Paradise,Kuruwita . | 071-8171277 | nirmalkshi90@gmail.com |
| v | Buddhi Enterprises | Others | Nalanda Ellawala Industrial Zone, Stage 01 02,Paradise,Kuruwita . | 071-4208073 | buddhi.ent @gmall.com |
| ak | Galle Marketing Services (Pvt) Ltd | Foot wear leather leather Prodct Sector | Nalanda Ellawala Industrial Zone, Stage 01 02,Paradise,Kuruwita . | 071-4309913 | gallemarketingservice@yahoo.com |
| T | Isuru green energy Engineering (Pvt) Ltd | Metal,Dies and Moulds, Machinery and related Industry Sector | Nalanda Ellawala Industrial Zone, Stage 01 02,Paradise,Kuruwita . | 072-7705363 0702705361 (Uththara) | isuruengineenring@yahoo.com Iisurugreenergy@gmail.com |
| U/AA | D.D.K.Technical Industries (Pvt) Ltd. | Electrical & Electronic Sector | Nalanda Ellawala Industrial Zone, Stage 01 02,Paradise,Kuruwita . | 071-8171277 | ddklanka@gmail.com |
| H | Yasasa (Pvt) Ltd. | Processed Food and related Industries Sector | Nalanda Ellawala Industrial Zone, Stage 01 02,Paradise,Kuruwita . | 071-6334964 071-8300352(Mangalika) | |
| az | pioneer Wireforming Industries (pvt) | Apperel, Textile and related Industries Sector | Nalanda Ellawala Industrial Zone, Stage 01 02,Paradise,Kuruwita . | 077-5566075 | pioneerhooks@gmail.com |
| S(Part) | MKG Tea Products | Tea, value added tea ,Beverages & related industry | Nalanda Ellawala Industrial Zone, Stage 01 02,Paradise,Kuruwita . | 077-3050459 072-7053919 | mkg.entropises.lk |
| G/H | Lankan Pewter (Pvt) Ltd | Metal,Dies and Moulds, Machinery and related Industry Sector | Nalanda Ellawala Industrial Zone, Stage 01 02,Paradise,Kuruwita . | 071 – 7040369 071-2644952 | lankanpewter@gmall.com |
| bv/bc/bp | S.S.P. Engineers (Pvt) Ltd | Others | Nalanda Ellawala Industrial Zone, Stage 01 02,Paradise,Kuruwita . | 077-7284320 | sspengineers@gmall.com |
| aq(Part) | S.S.P. Engineers (Pvt) Ltd(Expansion) | Others | Nalanda Ellawala Industrial Zone, Stage 01 02,Paradise,Kuruwita . | 077-7284320 | sspengineers@gmall.com |
| AZ | Gaya Minimart (Pvt) Ltd. | Processed Food and related Industries Sector | Nalanda Ellawala Industrial Zone, Stage 01 02,Paradise,Kuruwita . | 077-7683977 | priyantha.pushpakumara1977@gmail.com |
| K | Tasma Internasal Malti Services(Pvt) Ltd | Wood & wood based Industries Sector | Nalanda Ellawala Industrial Zone, Stage 01 02,Paradise,Kuruwita . | 715346195(Namali) | namali@gms.tasmagroup.com |
| aq(Part) | Auutoways (Pvt) Ltd | Rubber , Plastic & Allied Industries Sector | Nalanda Ellawala Industrial Zone, Stage 01 02,Paradise,Kuruwita . | 071 – 4193860 0714198781 | aautoways@yahoo.com |
| m | Spiral(pvt) Ltd | Foot wear leather leather Prodct Sector | Nalanda Ellawala Industrial Zone, Stage 01 02,Paradise,Kuruwita . | 077-7745101 | thnstave@yahoo.com |
| AF/AG | Agreedasiya (pvt) Ltd | Tea, value added tea ,Beverages & related industry | Nalanda Ellawala Industrial Zone, Stage 01 02,Paradise,Kuruwita . | 077-7666129 07054540470 | info@prabathdealwis.com |
| AQ | Hidallana Tea Factory (pvt) Ltd | Tea, value added tea ,Beverages & related industry | Hidellana , rathnapura | 0452263000 077-7741954 | lalith@rtstea.com |
| aq(Part) | Global Coiour Coatings (pvt) Ltd | paints ,painting meterials & chemical industry sector | Miriswattha Road ,Puwakpitiya ,Avissawella | 0772077999 077-7699653 | sunkempaint@gmail.com |
| T (Part) | P.J Plastic (pvt) Ltd | Rubber , Plastic & Allied Industries Sector | Nalanda Ellawala Industrial Zone, Stage 01 02,Paradise,Kuruwita . | 715364407 | prabath.pjplastic@gmail.com |
| BA(Part) | Prarthana Sheet Center (Expansion 3) | Metal,Dies and Moulds, Machinery and related Industry Sector | 477/J/1,Shanthipura, Kuruwita | 071-8004305 | prarthana@gmail.com |
| at | Mikeleets Fabric (Pvt) Ltd | Metal,Dies and Moulds, Machinery and related Industry Sector | 694/3,Kulasewana para,Kottawa,Pannipitiya | 077-3296199 | palithabeywickrama@gmail.com |
| AY/BE | Ceylon Gems & Silika Internasal (Pvt) Ltd | Minaral & Allied Industry sector | 56/1,Darmapala mawatha para,Madiwela,Kotte | 011-7418875 0112796813 0762378977 | wil.tharindu@cgslanka.com |
| AM | Ceylon Gems & Silika Internasal (Pvt) Ltd | Milk & milk based Industry sector | 56/1,Darmapala mawatha para,Madiwela,Kotte | 011-7418875 0112796813 0762378978 | wil.tharindu@cgslanka.com |
| ag/al | Nacreous (pvt) Ltd | Minaral & Allied Industry sector | No 169,Walpola, Aggoda’ | 773233889 | Amarasingheadunstan@yahoo.com |
| AJ/AI/AH | Sparkling Starwood Lanka (Pvt)Ltd | Wood & wood based Industries Sector | Nalanda Ellawala Industrial Zone, Stage 01 02,Paradise,Kuruwita . | 071-7849598 | sjsons@stl.lk cck530@gmaill.com |
| AR | J.K.Enterprises | Others | Nalanda Ellawala Industrial Zone, Stage 01 02,Paradise,Kuruwita . | 077-7727162 | thlakdamearachi@gmail.com |
Statistics
Investment Data
Employment Sector Wise
Number of Companies Sector Wise
Investment Data Sector Wise